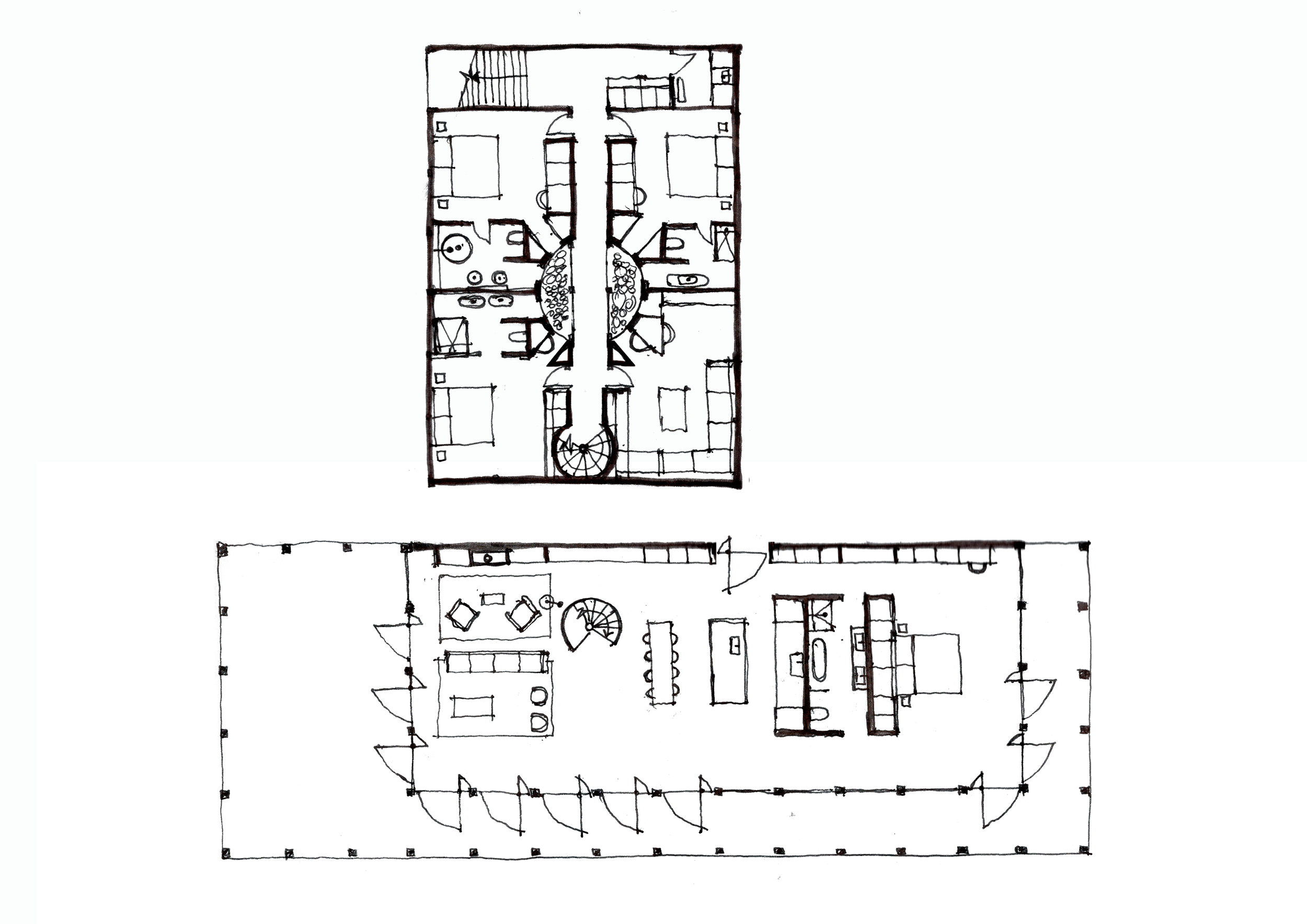
ICELANDIC HOUSE

Design Proposal - 200m2- 2 Levels  - 2020

Iceland’s landscape is mother nature’s beauty & power manifested. The architectural proposal looks to sit respectfully within the landscape. In response, the exposed elements of the building are paired back in form, devoid of ornament or decoration. The dwelling consists of a pavilion with elevated views. The ground level houses the main communal spaces consisting of the kitchen, living & dining areas.
Below ground are 3 bedrooms and a library which are centered around an internal light-well, providing daylight to spaces underground, protected from the harsh climate. Making use of the local geographic features, it is proposed to use geothermal steam to heat and power the house allowing the expanse of glass on the ground level and heating the steel and roof structure to ensure the low pitch roof is not overcome with snow loads.
The large external terrace can be occupied on the infrequent (but occurring) balmy Icelandic summer nights.