HILLS HOUSE

Design Proposal - 100m2- 1 Level - CALIFORNIA  - 2020

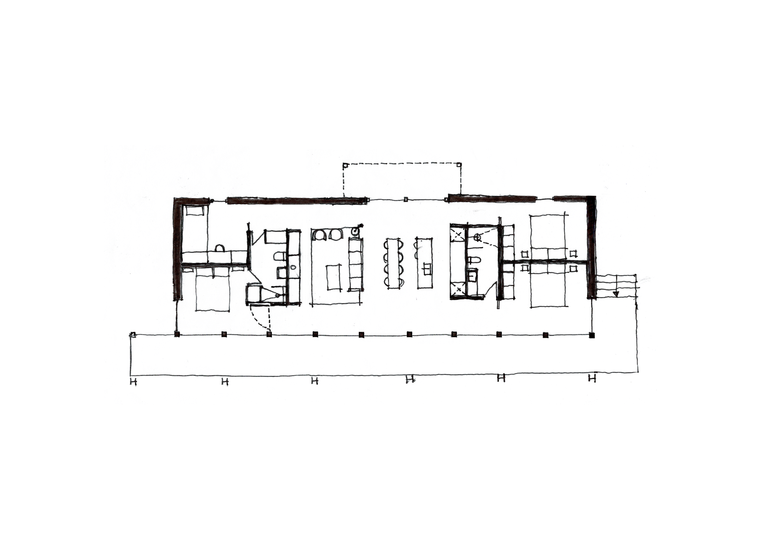
Treading lightly on the site to mitigate environmental impact and dealing with logistical challenges of  construction in an isolated location; are the base principles behind this concept design. Utilizing an efficient 110 m2 floor plan the living spaces are the core of building with guest bedrooms and bathrooms either side. The proposed construction system is a steel frame structure which is wrapped with a metal clad thermally insulating and self supporting panel system, allowing quick assembly with limited building on-site. The floating deck and sun-shading made from steel mesh panels provide solar shading but also allow the vegetation below to flourish. Intended as a retreat to explore the expansive nature, this simple dwelling is modest in size but has the ability to provide comfort and withdrawal for one to connect with the surrounding nature.