BENDIGO HOUSE

Design Proposal - 180m2- 1 Level - NEW ZEALAND - 2024

Set amongst the vines in the vast Bendigo valley, Central Otago, NZ this dwelling floats above the sloping
ground of the site. The vast monopitch roof with large overhang provides shelter from the harsh sumer sun and references the galvanised skillion roofed farm sheds scattered amongst the surrounding landscape.
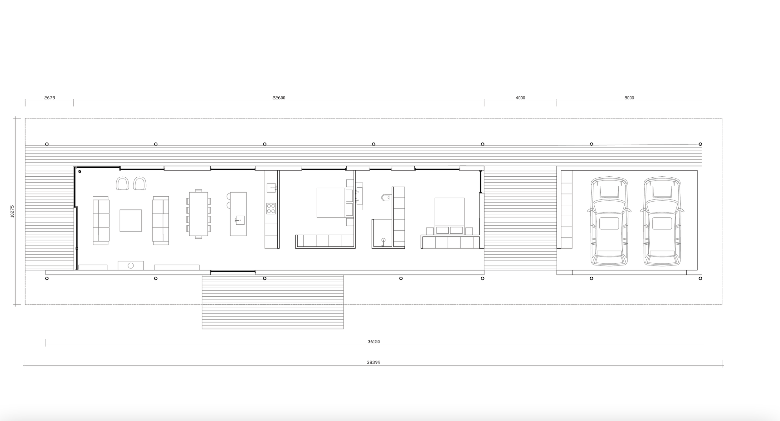
Responding to a sloping site, poles create a portal frame structure which is then infilled floor, walls and roof
elements. The plan and programme is modest for cost efficiency, with the option for the garage to become a
masterbed room with ensuite in the future. The buildings elegance is in its simplicity of structure and form
and refined materiality.